12 Greenway Crescent, Richmond, Tasman, Nelson

House & Land Package

Enquire Now

Looking for Something Special?

We have a fantastic home due to be built with plans at consent. This home is a step above and if you've been looking for something a little bit special then this could be the property for you.

It all starts with the land and this perfectly orinetated section, enjoys all day sun and offers a large, private backyard flooded with afternoon sun. The plan has been thoughfully designed to maximise the site whilst also providing impressive & effortless living.

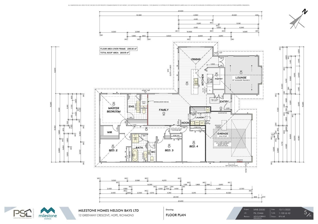
Step into the wide entry, flooded with light from the skylight and you'll be impressed by the higher stud and spacious layout. A central kitchen with large walk-in pantry is the hub of the home and offers access to the well defined family & dining spaces. Positioned behind the kitchen is a large separate lounge with a raking ceiling, perfect for kids or to retreat from the hustle & bustle in the evening.

The master suite includes a feature tray ceiling, huge walk-in-robe and impressive ensuite with a double bowl vanity and a large tiled shower featuring 2 shower heads. The other 3 bedrooms are very generous and include large wardrobes, fitted out with plenty of shleving.

The home isn't short of storage with 3 large double cupboards and an attic storage area. There is a computer nook in the living area and a walk-through laundry so this home really does have it all!!

The garage sits lower than the house giving a 3m stud and oversized garage door - perfect for a tall vehicle, storage or hobbies. It also ensures access is easy and the parking bay to the side of the garage can accommodate an overheight vehicle or trailer - perfect for the hardtop boat or campervan.

Specification Highlights Include: 

  • Integra plaster system with feature timber weatherboards 
  • Thermally broken aluminium joinery
  • Quality floor covering including floating laminate, tiled bathrooms and wool carpet
  • Solid Surface Benchtops
  • F&P Appliances
  • Ducted heating & cooling
  • Kwila decks
  • Fully fenced 

This package is an impressive proposition and should be on your shopping list! There is still time to choose colours and put your own stamp on the home.

Construction is due to begin in the New Year with an expected completion of May / June 2026.

Enquire today to see the full plans and specification and secure your new home!

Home Features
Bedrooms
4
Bathrooms
2
Living / Dining
2
Garage
2
Additional Information
Total Home Area
235 m2
Section Area
589 m2
Milestone Homes Guarantee
12 Months
Price
from $1,249,000

Get in touch with your local Milestone Homes team

Adam Hills
M: 021 979 366
E: adam.hills@milestonehomes.co.nz

We focus on what’s important to you, the new home owner. Ingrained in the fabric of who we are and what we do, we hold ourselves accountable to balancing and delivering quality, value, and exceptional service. Get in touch with us today!

Our House Plans